
Pennsylvania State University Burrowes Building
University Park, PA 16802
Joshua J. Fry
Architectural Engineering-Construction Option
Building Statistics
General Building Data-Part I
-
Building Name- Penn State Burrowes Building Renovation
-
Location & Site- 136 Burrowes Building University Park, PA 16802
-
Occupant- Penn State School of Liberal Arts with 2 general purpose classrooms
-
Size- 95,975 SF
-
Number of Stories Above Grade- 2 Wing Buildings at 5 stories each and a Core building that is 5 stories
-
Project Team-
-
Owner: Penn State University (http://www.opp.psu.edu/planning-construction/projects/burrowes-building-renovation)
-
GC: PJ Dick (http://www.pjdick.com/tpjwebsite.nsf/web/Home?opendocument)
-
Architect: BLT Architects (http://www.blta.com/)
-
Engineers: Gannett Fleming (www.gannettfleming.com), Vanderweil Engineers (www.vanderweil.com)
-
Commissioning: Aramark (www.aramark.com/)
-
-
Dates of Construction-
-
Start: 2/24/2014
-
Finish: 12/4/2015
-
-
Costs-
-
PSU Project Budget: $37.8 million
-
Project Cost: $28,507,000
-
CM Soft Costs: $187,000 for bonds & $265,000 for insurance
-
Owner Soft Costs: $6.5 million
-
-
Project Delivery Method- CM @ risk/Negotiated GMP
Architecture
This project encompasses renovations and furniture, fixtures, and equipment improvements to the Burrowes building on the Pennsylvania State University campus. This includes the original core building, approximately 49,600 GSF, and two 1968 wing additions, 31,500 GSF each, for a total of 95,975 GSF. The highest occupied floor is 5 stories. The building is occupied almost exclusively by the College of the Liberal Arts. There are also two general purpose classrooms that are scheduled through the University located in the building. The renovation will consist of a complete gut of the whole building and create office spaces that are more efficient to the owner’s goals and allow the 5 different departments of the school to be located on the same floor as one another. The renovation also includes the demolition of the 2 connecting structures referred to as “knuckles” from the core to the two different wings. This will allow for underpinning to secure the wings to the new connecting structures that will be built to match existing. The knuckles will include curtain walls on the east side of both structures to allow natural light into corridors and provide an architectural feature.
Primary goals noted by the College include the following:
-
Provide more offices.
-
Offices should be a standard size to provide maximum flexibility.
-
Graduate students may be placed in 3-person offices or in Graduate Advising Suites, similar to the Borland Building.
-
The Departments should be consolidated into the same geographic areas; do not split departments between floors, if possible.
-
Those spaces that are the most public, or require the most student traffic, should be located on the ground levels. Private spaces, such as offices, should be located away from the busiest foot traffic.
-
All private offices should have natural light.
Building Codes:
APPLICABLE BUILDING CODES AND STANDARDS
-
34 PA Code Chapters 401-405
-
IBC International Building Code 2009
-
NFPA 70-2008
-
National Electric Code (NEC) – Chapter 27
-
Elevators (Chapter 405 of UCC)
-
IECC International Energy Conservation Code 2009
-
IEBC International Existing Building Code 2009
-
IFC International Fire Code 2009
-
IFGC International Fuel Gas Code 2009
-
IMC International Mechanical Code 2009
-
IPC International Plumbing Code 2009
As well as all of these codes PSU requires all contractors to submit products that meet minimum LEED standards.
Zoning:
As the building is on Campus for the university, the architect submitted to the Centre County Conservation District Review Board and received approval. The project team was not substantially modifying the height or square foot of the existing building, nor changing the use of the building, and no zoning variances were required.
Historical requirements:
There were no requirements for historic restoration or preservation by State of Federal agencies. Penn State, in general, attempts to conserve all of their historic properties by identifying historic, or socially significant elements, and preserving them through the construction process. At the Burrowes Building, the main interior space on the 1st floor identified as the Rotunda and the exterior face of the building towards the Mall are considered significant and need to be preserved.
The original building of Burrowes was built beginning in 1938 and completed in 1940. It was originally occupied by the School of Education and named after Thomas H. Burrowes. The College of the Liberal Arts has occupied the building since the early 1960s. The original designer of the Burrowes Building was Charles Z. Klauder’s (1872-1938) and it was his last design project. He was a prolific designer of campus buildings and was regarded as the preeminent university architect and campus planner.
Building Enclosure
-
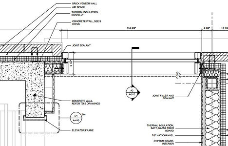
Building Façade- The façade consist of brick with limestone sill. A typical wall will consist of 6” CMU with 2” insulation board, then an air barrier, and finally the brick and stone.

-
Windows- The owner requested that all windows be replaced during the renovation. There will also be a full height curtain wall system that will be located on the mall side of the building toward the library. The new windows for the curtain wall will be installed using an aluminum curtain wall system that will anchor into the brick veneer wall as seen in the detail.

Couresty of BLT
Couresty of BLT
-
Roofing- The roof consist of a standard EPDM roof which is a durable rubber synthetic roof membrane back with 18 gauge roof decking.
Detailed Wall Section
Detailed Window Section
Sustainability Features
The Burrowes Building Renovation Project is striving to achieve LEED-NC Silver. To achieve this the project will incorporate:
-
Source in regional materials whenever possible
-
Recycling construction waste
-
Using LEED approved materials and products
-
Install air-conditioning throughout the building
-
Full-height curtain wall
-
New MEP equipment in the basement mechanical room in the core building
Building Systems
•Mechanical: The new mechanical system will consist of a completely new dedicated outside air w/ VAV air handling system . The original building contained only radiant heating with no air conditioning which made the space very uncomfortable in the summer months. 6 new air handlers will be set in the basement after it is excavated down to provide enough clearance and access to the equipment for OPP to perform maintenance and service. The two end AHU's will contain enthalpy energy recovery wheels and will be the units to provide air to the Wings. These units will provide 4100 CFM each. The four central units will provide all the air to the Core. These units will provide a total of 11,400 CFM to the Core. There will be duct shafts located at each end of the Core building and at each wing that will allow duct work to be ran up to the top floor from the basement to provide conditioned air to these spaces. Each floor will contain a different zone of cooling. The corridors of the Wings will contain ceiling mounted Fan Coil Units (FCU) and the rooms will contain wall FCU's. In the Core there will be finned tube radiators along the bottom of the walls to provide heat. The knuckles are utilizing Blower Coil Units (BCU) for cooling.
•Structural: The knuckles will contain the only new structural steel. The steel will be connected to the elevator shaft and the existing Wing and Core buildings. The structural steel system will consist of W flange columns and beams ranging from W10x19 to W12x65. There will also be HSS used as the columns for the knuckles four most exterior corners. The floors will be a composite deck consisting on metal decking with a 4 inch thick concrete slab. The roof will contain 18 gauge roof decking and there will be no concrete poured on this decking. All of the interior steel beams and columns will be fireproofed to achieve the required 2 hr fire rating. There will be two different cranes used for erecting the steel of the knuckles. The first crane will be located on the Southeast side of the building toward Oswald Tower. The other crane will be located on the Northwest side near the Library mall.
•Masonry: The new masonry system will utilize a grid system to attach limestone panels on the knuckle towards the mall. On the East side of the knuckles toward Oswald Tower will be where scaffolding will be erected to install the brick up to the roof. The scaffolding will consist of a standard steel frame with wood planks and the floor material. The masonry is not load bearing except for the fact that it holds its own weight.
•Electrical: The electrical system will consist of a 480 V (1600 A) service transformer and a 120/280 V (1200 A) step-down transformer that will service panels through the Core and Wing buildings. These pieces of equipment will be located on the mall side of the building. A new emergency power system will be installed and use a 100 KW generator and will be located in the new electrical room with the switchgear. All of the interior and exterior lighting will be upgraded to include high efficiency bulbs and fixtures to help achieve LEED points. The other major electrical rooms such as the switchgear room will be located on the ground floor of the Core building.
•Cast in Place Concrete: The foundation in the basement will be demolished in sections and then the ground will be excavated to provide more ceiling height than the original ceiling of 6ft. To provide room for new mechanical equipment. The existing steel columns will be jacked up and supported using two W flange beams to distribute the building weight until the new footings are formed and poured. The footings will then be poured with 8000psi high yield strength concrete. The knuckles with consist of an formed and poured elevator shaft. The majority of the concrete mixtures used throughout the project include 3500psi and 6000 psi for the elevator shafts. Concrete will be placed with a variety of methods. To get concrete to the basement for the new foundation holes will be cut in the ground floor to allow for a chute to be used to place concrete throughout the basement. The crane will lift a 5 yd. bucket with concrete for the elevator shafts. The stairs in the knuckles will be poured by lifting 5 gallon buckets up to each floor with a JLG lift.
•Demolition: There is a large amount of demolition and asbestos abatement required for this project. There is also some lead paints from the original construction that will need to be addressed before construction can begin in those areas. The demo will include a complete gut of the Core and Wing buildings as well and completely demolishing the knuckles down to the foundation. Most of the piping throughout the building is wrapped in asbestos.
Support of Excavation:The existing footers under the north and south knuckles needed to be underpinned and demoed. The existing structure of the core building was supported by installing 13 sets of micro piles and 13 needle beams to transfer the weight of the structure while excavation occured. This allowed for the foundation footing to be formed and re-poured allowing it to support the larger load of the new structure. This process was repeated for the south knuckle as well. There was a major risk of hurting the structural integrity of the existing structures while the foundations were underpinned. There was crucial coordination by PJ Dick to ensure that this task was completed in a safe and effective manner. The major equipment used for this task included: 330 excavator, bobcat mini excavator, micro pile driver, and tamper.
Fire Protection: The sprinkler system used for this building is a wet pipe system with standpipes in the stairwells that feed into recessed sprinkler heads in each of the offices and throughout the rest of the building. Fireproofing was also used on the exposed steel beams to guarantee a 2 hour fire rating for the structure.
Transportation: Two new 3000lb elevators will be installed in the knuckle structures to allow for circulation throughout the whole building and to allow for deliveries to be easily transported among the different floors.